Post Property
Commerical Shop/ Office

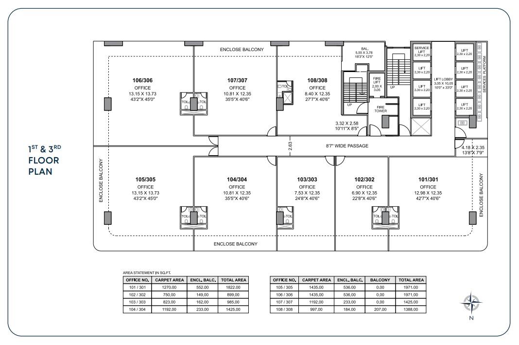
Commercial Shop For Sale In Kharadi

Pune
Price: โ‚น 1.5 Cr
Price (INR) per sq.ft. :โ‚น
Maintainance Charges :โ‚น 2000

More Detail :-

Price Breakup 1.5 Cr

Booking Amount 100000

Locality Kharadi

Sub Locality

Furnishing

Age of Construction New Constructiones

Property Description:-

Looking for bare shell office space for property investment purposes in Pune East, Omicron Business Landmarks can be the right bet for you. It is a new launch project in Kharadi, Pune, offering investment options within your budget. For those looking for exciting returns on investment, Omicron Business Landmarks is Pune East's most desirable commercial project, where property options are available starting ...

Reviews & Ratings

WhatsApp